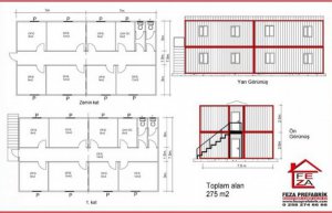
275 m2 - Feza İki Katlı Konteyner

Birleşimli Konteynerler

Feza Prefabrik olarak, modern ihtiyaçlara uygun yüksek kaliteye sahip Birleşimli Konteynerler üretiyoruz. Birleşimli konteynerler, farklı alanlarda kullanıma uygun, esnek ve hızlı çözümler sunar. Özellikle inşaat, depo ve geçici ofis ihtiyaçları için ideal bir seçenektir.

Bu konteynerler, modüler yapıları sayesinde kolayca birleştirilebilir ve genişletilebilir. İhtiyaca göre özelleştirilmiş tasarımlar ve işlevsellik, her türlü kullanım amacına uygun çözümler sağlar. Yüksek dayanıklılığı ve hızlı montaj özellikleri ile projelerinize değer katar.

Feza Prefabrik olarak, Birleşimli Konteynerlerimizin kalitesine ve müşteri memnuniyetine odaklanarak, ihtiyaçlarınıza en uygun çözümleri sunuyoruz. Her detayda kaliteyi ön planda tutarak, güvenilir ve uzun ömürlü konteynerler üretiriz.

Benzer ürünler